112 — Sint-Hubertusstraat 1

Conformity certificate

Awarded on 24 July 2018

This building currently has a valid conformity certificate.
In Ghent, the quality of life and fire safety in student accommodation is monitored through the Flemish Housing Code and the Police Regulations on shared student accommodations.
A certificate of conformity constitutes proof of an inspection with a positive outcome.

Kotatgent wants to promote rooms with a certificate of conformity.

The Supervision Service of the City of Ghent and the fire brigade undertake to check the rooms on Kotatgent for the mandatory safety requirements from the Flemish Housing Code and the Police Regulations for the room apartments. Landlords who advertise on Kotatgent demonstrate the commitment to rent out safe housing.

Landlords can also request a check at the City of Ghent to obtain a certificate of conformity.

In the case of rooms that are not in order, a procedure for unsuitability or uninhabitability can be started. Such a procedure can - if the owner does not comply with the rules - ultimately lead to an effective unsuitability or habitability. All residents are then contacted by a social consultant to view the housing options.
The City is doing everything it can to avoid unsuitable or uninhabitable declarations and to have a procedure lead to a certificate of conformity.

Characteristics

Type
Studio
Room suitable for number of people
2
Surface area
60 m²
Floor
1
Facing the street
Yes
Private shower/bath
Yes
Private toilet
Yes
Private kitchen
Yes
Furnished
Yes
Accessible to wheelchair users
No
Internet
Yes
TV connection
Yes
Heating
Gas

Rental price

Composition and calculation of rent per month

Rental price
€ 1.000,00
Water Provision: monthly advance with settlement according to consumption
€ 20,00
Electricity Provision: monthly advance with settlement according to consumption
€ 20,00
Gas Provision: monthly advance with settlement according to consumption
€ 30,00
Internet Fixed rate: fixed amount per month
€ 25,00

Total rental price
€ 1.095,00

Deposit

The deposit is: € 2.000,00. To be transferred to the landlord.

Location

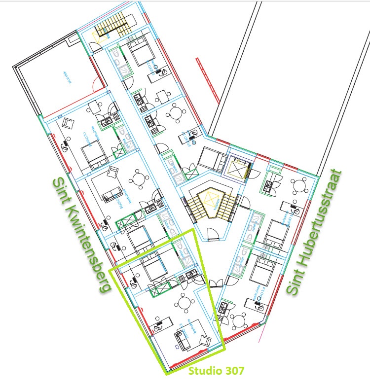
Sint-Hubertusstraat 1, 9000 Gent

View on Google Maps

Building

Number of rooms
0
Number of studios
39
Number of shared showers
0
Number of shared kitchens
0
Bicycle storage capacity in number of bicycles
50
Garden or terrace
No

Description

Apartment within walking distance of Sint-Pietersplein, the Faculty of Engineering, Economics and Business Administration, Arts and Philosophy, and Artevelde University College.

Available from December 1st. Contract until 31/08/2026 or negotiable. After this period, the contract can be renewed per academic year.

Rented only to university/college students or PhD students.
Ideal for 2 people.

The apartment includes a living area, 1 separate bedroom, and a bathroom.
Living area includes: kitchenette (incl. fridge with freezer compartment), spacious desk, table with 4 chairs.
Bedroom includes: built-in wardrobes, second spacious desk, double bed with mattress.
Bathroom includes: shower, sink, and wall-hung toilet.

The rent for the apartment as shown in the photos is €1000 + €25 for internet and TV distribution + €70 as a provisional amount for variable costs (maintenance of shared areas, electricity, water, and heating).

There is a separate waste room and bicycle storage.
Residence registration is possible.
Contract in English/Dutch

Contract

Landlord type
Directly from landlord
Contract type
Own rental contract
Contract duration
Other period
Contract start date
1 December 2025
Contract end date
31 August 2026

Contact the landlord

Spoken languages

Dutch, English

Send a message to the landlord

Fill in all fields unless otherwise stated.

Last changed : 24 November 2025